WrinkleSTOP® Operating Instructions
IMPORTANT:
WrinkleSTOP® OPERATING PRINCIPLEThe WrinkleSTOP® No-Bow Spreader Roll is essentially a dead shaft idler roll. The face of the roll is made up of a rubber sleeve, the ends of which are attached to ball bearings mounted to adjustable pivoting end caps. The sleeve is supported by a series of flexible disks which are mounted to a ball bearing mounted support tube. The outer sleeve, disks, end caps and disk support tube all rotate together about a common center support shaft. During the course of one revolution, the outer sleeve stretches from zero to preset stretch in 180 degrees and relaxes from preset stretch to zero in the remaining 180 degrees. RULES OF THUMBThere are three basic considerations that affect the spreading action of a WrinkleSTOP® Roll. They are:
When the end caps are parallel to the flow of material, a zero spreading condition exists. Angular displacement of the end caps will regulate the amount of spreading action. The end caps are independently adjustable allowing for differential spreading from one side of the web to the other. Adjustment is made with Adjusting Screw 9 (see figure B).
A = LEAD IN
Figure A
As seen in Figure A spreading action will occur if the material enters the roll at point D and leaves the roll at point E. It is best to enter the roll slightly downstream of point D and exit just prior to point E. NOTE: The roll will spread with any wrap angle, 180 degrees is not required for every application. (see table) |
| ||||||||||||||||||||||||
|
The roll may be oriented so the stretch / relax cycle will occur wherever the machine design and/or material flow dictates. The center shaft is supported in split pillow block mounting brackets on each end. The spread position can be adjusted by loosening the top cap bolt in each bracket and rotating the center shaft.
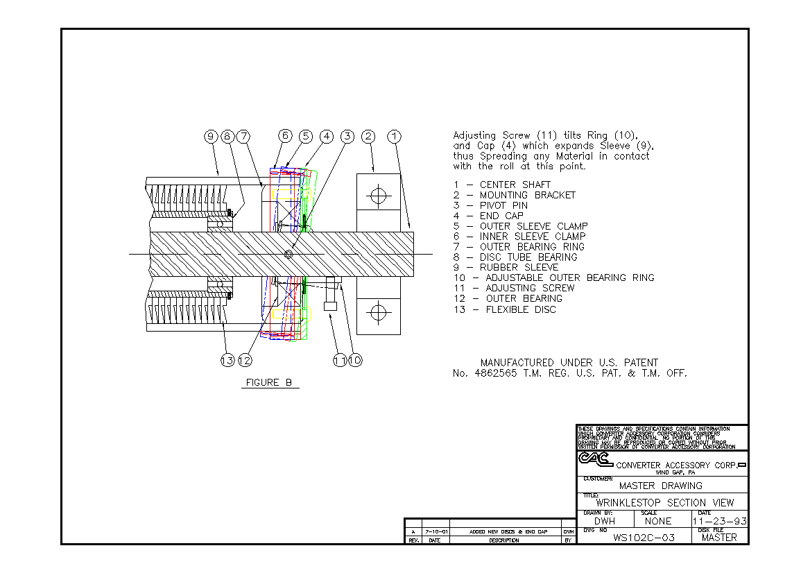
(FIGURE B)
Note: Adjusting screw (11) tilts ring (10), and cap (4) which expands sleeve(9), thus spreading any material in contact with the roll at this point.
IMPORTANTDO NOT LAY ROLL ON ITS FACE AS THIS WILL CAUSE A FLAT SPOT AND/OR DAMAGE TO THE OUTER SLEEVE AND/OR THE INTERNAL CONSTRUCTION. ALWAYS SUPPORT THE ROLL ON THE CENTER SHAFT ONLY. Manufactured under U. S. Patent No. 4862565 t.m. reg. US pat. & tm office
|

Phone (800) 433-2413 - (610) 863-6008
© 2026 Converter Accessory Corporation






